Η μεγάλη ημέρα για την πολυαναμενόμενη δίκη της τραγωδίας στα Τέμπη είναι η 23η Μαρτίου 2026.Για τότε έχει προσδιοριστεί η έναρξη της ακροαματικής διαδικασίας σε μια δίκη που -όπως εκτιμάται- θα συγκεντρώσει τα βλέμματα τόσο της ελληνικής κοινωνίας, όσο και διεθνών μέσων ενημέρωσης.
Οι αριθμοί και τα μεγέθη των υποδομών που απαιτούνται για την διεξαγωγή αυτής της δίκης είναι εκτός όσων έχουμε συνηθίσει για μια δίκη. 36 κατηγορούμενοι, εκατοντάδες δικηγόροι, απαιτήσεις για πολλές θέσεις δημοσιογράφων αλλά και ακροατηρίου θα απαιτήσουν χώρους που δεν υφίστανται στο δικαστικό μέγαρο της Λάρισας.
Για αυτόν τον λόγο προκρίθηκε η διαμόρφωση και χρήση του Συνεδριακού Κέντρου του πανεπιστημίου Θεσσαλίας. στο συγκρότημα ΓΑΙΟΠΟΛΙΣ (πρώην ΤΕΙ Λάρισας) όπου θα διεξαχθεί η μεγάλη δίκη για το σιδηροδρομικό δυστύχημα στα Τέμπη.

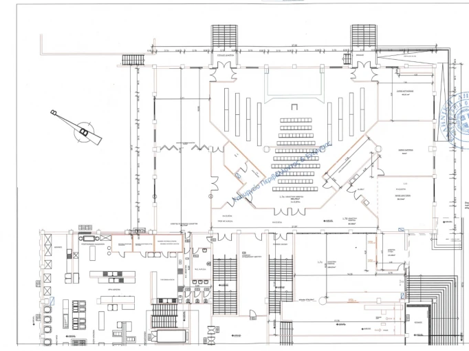
Σύμφωνα με την ιστοσελίδα larissanet.gr που δημοσίευσε τα σχετικά σχέδια, το συνολικό εμβαδό της αίθουσας του Τριμελούς Εφετείου Κακουργημάτων Λάρισας όπου θα εγκατασταθεί η έδρα του δικαστηρίου, τα έδρανα των δικηγόρων, οι θέσεις των κατηγορουμένων κτλ. είναι 283,75 τ.μ..
Επίσης ορίστηκε ως επιπρόσθετη αίθουσα συνεδριάσεως (ακροατήριο) για την εκδίκαση της υποθέσεως: α) τον εκ δεξιών της εισόδου κύριο χώρο υποδοχής του ανωτέρω Συνεδριακού Κέντρου, εμβαδού 109,57 τ.μ., όπου θα εγκατασταθούν θέσεις ακροατηρίου με οθόνες και β) τον χώρο φουαγιέ του Συνεδριακού Κέντρου, εμβαδού 82,58 τ.μ., όπου επίσης θα εγκατασταθούν θέσεις ακροατηρίου με οθόνες.

Τα ανωτέρω αναφέρονται στην σημερινή πράξη της Διευθύνουσας το Εφετείο Λάρισας, για τον ορισμό της αίθουσας συνεδριάσεων (ακροατήριο) για την εκδίκαση της υπόθεσης που αφορά το δυστύχημα των Τεμπών.
Κοινοποιήθηκε επίσης η κάτοψη της αίθουσας όπου μεταξύ άλλων διακρίνεται «χώρος αστυνομίας», «χώρος μαρτύρων», «χώρος δικηγόρων» και «αίθουσα Τύπου».
Να σημειωθεί πως πρόσφατα δημοσιεύθηκε από το Εφετείο Λάρισας ανάθεση εργασιών ύψους 12.350,40 € σε εταιρεία Security για την προμήθεια υλικών τοποθέτησης συστήματος βιντεοεπιτήρησης, για τις ανάγκες της δίκης.
Θυμίζουμε πως οι κατηγορούμενοι στην υπόθεση είναι 36 και ο αριθμός μαρτύρων και δικηγόρων ξεπερνάει τους 200. Η έναρξη της δίκης προσδιορίστηκε για την Δευτέρα 23 Μαρτίου του 2026.